Delen
€ 437.850
Appartement TE KOOP in Merchtem
Unieke assistentiewoning (2019) op de vijfde verdieping centrum Merchtem.
In 1888 kreeg de familie Van Ginderachter het bedrijf in handen en werd de brouwerij omgedoopt tot Martinas. De historische charme van de brouwerij werd gecombineerd met alle luxe en comfort. De brouwerij werd uitgebouwd tot een project dat bestaat uit unieke lofts en appartementen en erkende assistentiewoningen met veel karakter en nostalgie. Het project heeft in totaal 11 verdiepingen en kelder met ondergrondse parking.
Het pand is momenteel verhuurd wat dus zorgt voor een stabiele huurinkomst.
Autostaanplaats te koop vanaf €18.000.
Pluspunt: De koper is vrijgesteld van het KI omdat het erkende assistentiewoningen zijn.
Bent u op zoek naar een veilige belegging? Dan is deze assistentiewoning dé oplossing voor jou!
Kenmerken:
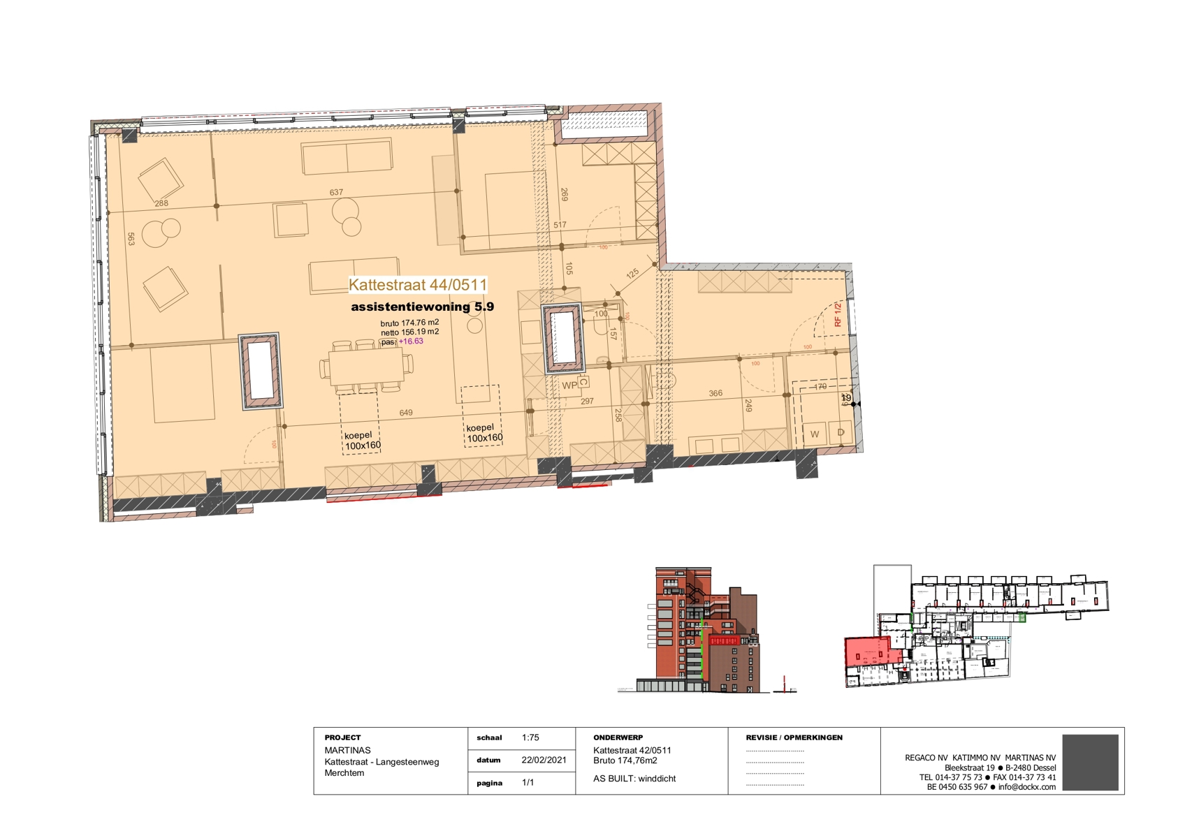
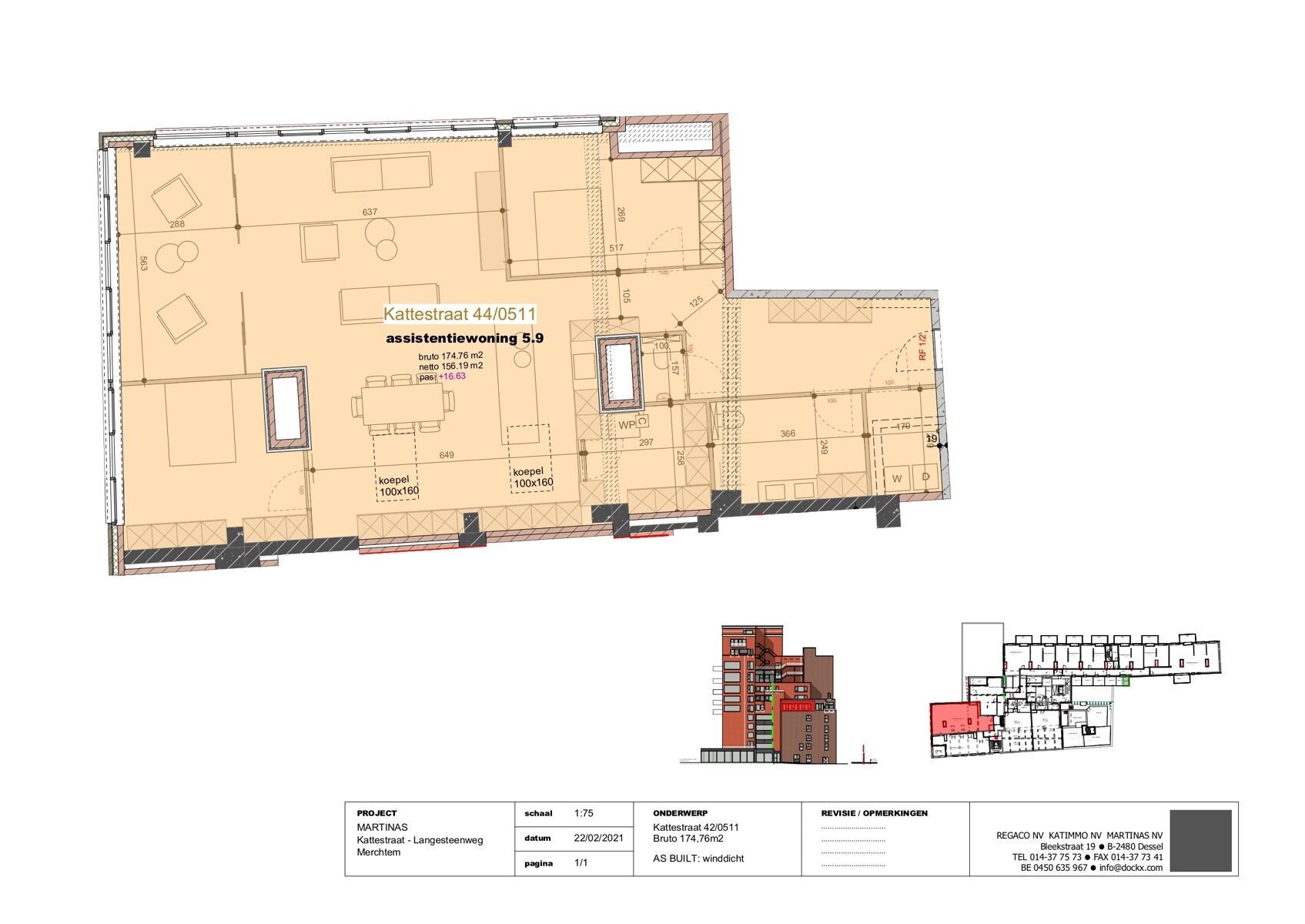
- Ruime, lichte woonkamer van 60m² met grote ramen en prachtig uitzicht
- 2 Grote slaapkamers met voldoende ruimte van 20 m² en 17 m²
- Moderne eilandkeuken met inbouwapparaturen en ruime eetkamer van 40 m²
- 2 bergingen
- Aangepaste badkamer met inloopdouche en toilet
- 2de gastentoilet
- Lift aanwezig
- Zorg en ondersteuning beschikbaar
- Energiezuinig: Warmtepomp en hoogrendementsglas
- EPC A
- Zonnescreens: oriëntatie Zuid-West
- Terras: niet individueel maar wel op uw verdieping mogelijk om op terras te zitten
De assistentiewoning is ontworpen voor mensen die wat extra zorg nodig hebben, maar nog steeds zelfstandig willen wonen. Je hebt toegang tot professionele zorgverleners en een breed scala aan voorzieningen die bijdragen aan welzijn en comfort.
Locatie:
Het appartement is gelegen in een goed bereikbare straat met alle noodzakelijke voorzieningen in de buurt, zoals winkels, supermarkt, wekelijkse markt, openbaar vervoer en medische zorg.
Wil je meer informatie of een bezichtiging plannen? Neem dan snel contact met ons op via info@dockx.com of 014 37 75 73.
In 1888 kreeg de familie Van Ginderachter het bedrijf in handen en werd de brouwerij omgedoopt tot Martinas. De historische charme van de brouwerij werd gecombineerd met alle luxe en comfort. De brouwerij werd uitgebouwd tot een project dat bestaat uit unieke lofts en appartementen en erkende assistentiewoningen met veel karakter en nostalgie. Het project heeft in totaal 11 verdiepingen en kelder met ondergrondse parking.
Het pand is momenteel verhuurd wat dus zorgt voor een stabiele huurinkomst.
Autostaanplaats te koop vanaf €18.000.
Pluspunt: De koper is vrijgesteld van het KI omdat het erkende assistentiewoningen zijn.
Bent u op zoek naar een veilige belegging? Dan is deze assistentiewoning dé oplossing voor jou!
Kenmerken:
- Ruime, lichte woonkamer van 60m² met grote ramen en prachtig uitzicht
- 2 Grote slaapkamers met voldoende ruimte van 20 m² en 17 m²
- Moderne eilandkeuken met inbouwapparaturen en ruime eetkamer van 40 m²
- 2 bergingen
- Aangepaste badkamer met inloopdouche en toilet
- 2de gastentoilet
- Lift aanwezig
- Zorg en ondersteuning beschikbaar
- Energiezuinig: Warmtepomp en hoogrendementsglas
- EPC A
- Zonnescreens: oriëntatie Zuid-West
- Terras: niet individueel maar wel op uw verdieping mogelijk om op terras te zitten
De assistentiewoning is ontworpen voor mensen die wat extra zorg nodig hebben, maar nog steeds zelfstandig willen wonen. Je hebt toegang tot professionele zorgverleners en een breed scala aan voorzieningen die bijdragen aan welzijn en comfort.
Locatie:
Het appartement is gelegen in een goed bereikbare straat met alle noodzakelijke voorzieningen in de buurt, zoals winkels, supermarkt, wekelijkse markt, openbaar vervoer en medische zorg.
Wil je meer informatie of een bezichtiging plannen? Neem dan snel contact met ons op via info@dockx.com of 014 37 75 73.
Bouwjaar
2019
Woonoppervlakte
150
m²
Lift
ja
Slaapkamers
2
Slaapkamer 1
20
m²
Slaapkamer 2
17
m²
Keuken
ja
(volledig geïnstalleerd)
Badkamers
1
(douche)
Verdieping
5
Woonkamer
90
m²
Toiletten
2
Wasplaats
ja
Dubbele beglazing
ja
Wasplaats
ja
Comfort
Energiebron
warmtepomp